Piso Entregue em cimento liso desempenadoParede Concreto aparente e/ou pintura látex, Suvinil, Sherwin Williams e/ou pintura texturizada imitando concreto ou desempenho equivalenteTeto Laje de concreto aparenteBanheiro 2 banheiros entregues com piso em porcelanato, paredes com pintura látex acrílico na cor branco, teto com pintura látex acrílico na cor branco e louças e metais Deca ou de desempenho equivalenteVagas 2 vagas para utilitários de uso compartilhado entre as lojas, localizadas no 1 subsoloMaiores informações e visita entre em contato.Anuncio sujeito alteração de valores e outros, sem prévio aviso!Reservamos o direito de erros de digitação!Precisando de mais fotos acesse nosso site ou solicite agora mesmo.Outras informações acessem nosso site www.displayimoveis.com.br.Não deixe de nos consultar, temos outros imóveis que podem servir para sua empresa, com preços e condições diferenciadas.
Especificações
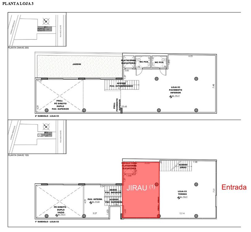
349,00 m² Privativos
7,50 m² de Terreno
2 Garagens
Comodidades
Ar Condicionado
Informações Adicionais
Condomínio: R$ 1,00
IPTU: R$ 4.537,00
Localização
ENTRAMOS EM CONTATO
Compartilhe este Imóvel
Veja mais
Ligue Agora
Endereço
Av. Santo Amaro, 1047, Cjto 802/803 - Vila Nova Conceição, São Paulo - SP, 04505-001